




























Karaktervolle tweekapper op mooi perceel in centrum
Midden in het gezellige centrum van Heeswijk-Dinther staat deze charmante, karakteristieke twee-onder-een-kapwoning uit 1948. Gelegen op een mooi perceel van 302m² en met een vrijstaand bijgebouw van 32 m², biedt deze woning volop mogelijkheden. De centrale ligging in de driehoek Eindhoven-Nijmegen-‘s-Hertogenbosch, de A2/A50 op korte afstand en het buitengebied ‘om de hoek’ verzekeren je hier van jarenlang woonplezier.
De woning is in 2004 uitgebouwd en gerenoveerd en is na bijna 20 jaar toe aan een nieuwe impuls. Ga jij hier jouw ideeën vormgeven? Maak snel een afspraak en laat je verrassen door de sfeer en kansen, die deze leuke tweekapper te bieden heeft!
INDELING
BEGANE GROND
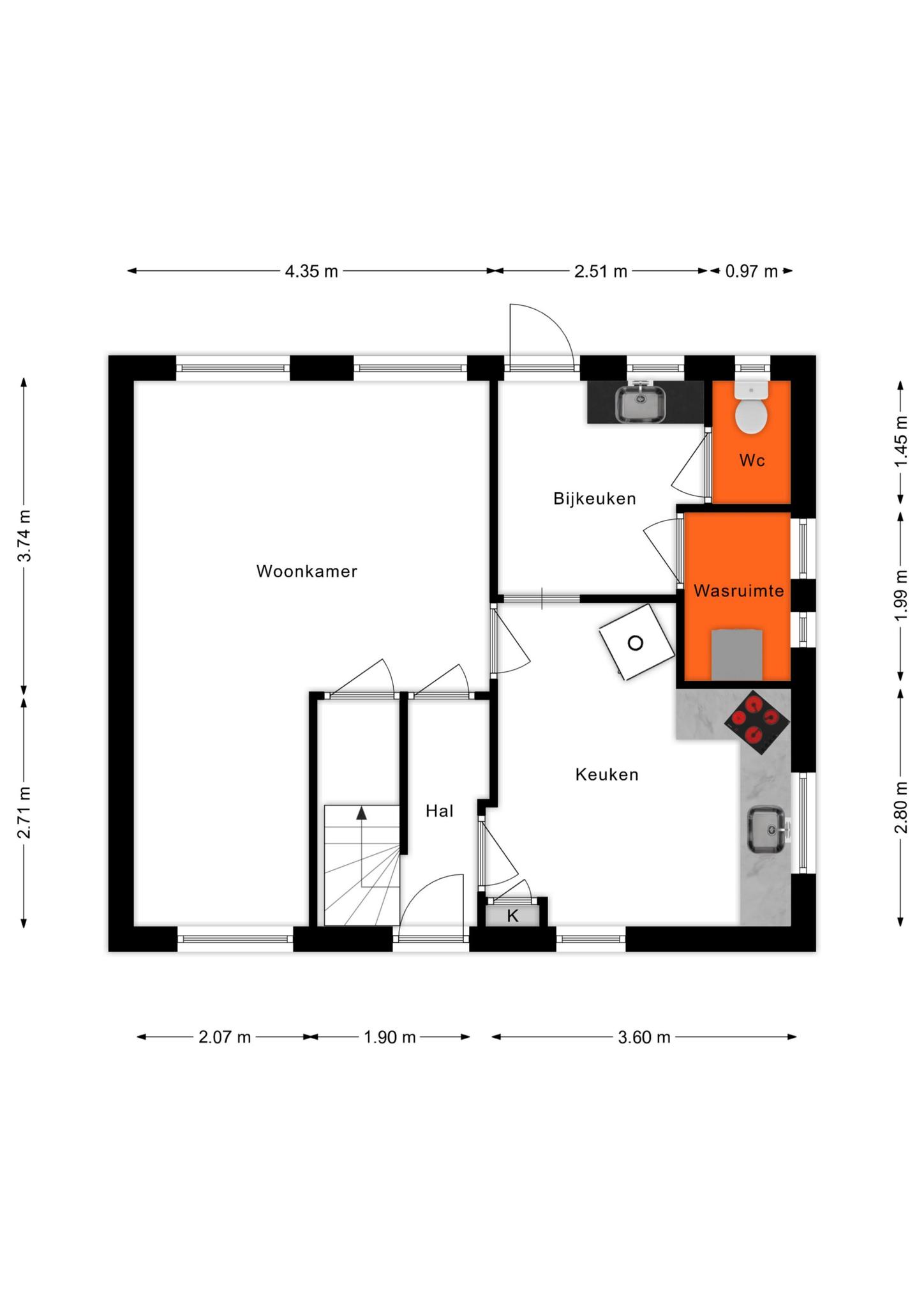
Bij binnenkomst waan je je nog steeds in de jaren ’40. De mooie authentieke paneeldeuren en de bakelieten wandtelefoon doen de tijd even stilstaan. In de hal is de meterkast en de trapopgang. Charmant zijn het halvemaan raampje boven de voordeur en de nis in de wand, die dienst kan doen als garderobe. Op de vloer ligt een tegelvloer en de muren zijn strak gestuukt. Vanuit de hal heb je zowel toegang tot de keuken als de woonkamer. De ramen in zowel de voor- als achtergevel van de woonkamer geven volop daglicht en hierdoor heb je een mooi zicht op de achtertuin en de Torenstraat.
Op de vloer liggen eiken planken en de muren zijn strak gestuukt. In de woonkamer is de toegang tot de kelder. Het betreft een ouderwetse kelder met koekoek voor ventilatie en volop ruimte voor het bewaren van o.a. levensmiddelen, die hier heerlijk koel blijven.
De woonkeuken vormt het hart van de woning en is een gezellige plek voor het hele gezin. Via de openslaande ramen heb je zicht op de kerk. De keuken is in U-vorm opgesteld en voorzien van een terrazzo werkblad. De volgende apparatuur is aanwezig:
• koelkast
• 4 pits gasfornuis
• afzuigkap
Op de vloer van de keuken ligt een tegelvloer met een fraai mozaïek en voorzien van vloerverwarming. Charmant is de authentieke servieskast voor extra opbergmogelijkheden. Tot slot is de houtkachel in de hoek van de keuken een sfeervolle en functionele eyecatcher.
Vanuit de keuken lopen we naar de ruime bijkeuken. Op de vloer ligt dezelfde tegelvloer als in de keuken. Het onderste gedeelte van de wanden is betegeld, de overige wanden en het plafond zijn gestuukt. Onder het raam is een aanrecht met terrazzo blad opgesteld. De vormgeving van het aanrecht doet denken aan vervlogen tijden en past perfect in de sfeer van de woning. Hier is een voorziening voorbereid om gebruik te maken van grijs water. In de bijkeuken vind je ook het toilet en de geheel betegelde witgoedruimte met voldoende plaats voor wasmachine, droger en eventueel een extra koel/vrieskast. In de keuken, de bijkeuken en het toilet ligt vloerverwarming
EERSTE VERDIEPING
Op de eerste verdieping vind je aan de drie slaapkamers en de badkamer.
Op de overloop ligt zeil met een zwarte tegelprint. in de slaapkamers ligt een laminaat vloer. Alle wanden zijn glad gestuukt, tegen de plafonds zijn zachtboardplaten aangebracht. De linker slaapkamer aan de achterzijde heeft een dakkapel, in de rechterslaapkamer is een bedstee waar twee kinderen kunnen slapen. De ouderslaapkamer heeft een vaste kast.
De complete badkamer is afgewerkt met zwart/wit tegeltjes en is voorzien van het volgende sanitair:
• ligbad
• separate douchecabine
• toilet
• wastafel met terrazzo blad
• designradiator
Het dakraam zorgt voor lichtinval en natuurlijke ventilatie.
TWEEDE VERDIEPING
Achter de laatste deur op de verdieping gaat de trap naar de tweede verdieping schuil. Deze is in gebruik als bergzolder. Hier is ook de opstelplaats van de CV ketel.
GARAGE/BIJGEBOUW EN TUIN
De achtertuin ligt op het zuidoosten, je geniet hier de hele dag van de zon.
In de tuin ligt een gezellig terras met een vaste bankopstelling inclusief bergruimte.
De tuin kan worden besproeid via een grondwaterpomp. Deze bevindt zich in het bijgebouw.
De vrijstaande stenen garage (met vliering) is bereikbaar via de stalen kanteldeur aan de voorzijde en via de loopdeur vanuit de achtertuin. In 2023 hebben bewoners een extra ruimte gecreëerd achter de garage. Hier vind je een entree met toiletruimte. Bijzonder is dat het duurzame karakter van het toilet: voor het spoelwater wordt gebruik gemaakt van hemelwater. Vanuit de entree kun je enerzijds naar de garage en anderzijds naar de werkruimte (geïsoleerd). De creatief vormgegeven raampartij springt hier direct in het oog. Een fijne, lichte plek voor praktijk/kantoor aan huis. Verrassend is de bovengelegen ruimte waar een slaapplekje is gecreëerd.
De tuin is geheel omsloten. Via de poort aan de rechterkant van de woning loop je naar de inrit, ruim genoeg voor twee auto’s. Achter de poort is een overkapping om fietsen te stallen.
De highlights van deze woning
• Sfeervolle jaren ’40 woning, type twee-onder-een-kap
• Royaal zonnig perceel van 302m2, op zuidoosten gelegen
• Centrale ligging nabij voorzieningen en uitvalswegen
• In 2004 uitgebouwd
• 3 slaapkamers
• Vrijstaande garage en werkruimte (geïsoleerd)
• Royale oprit voor 2 auto’s
• Energielabel C
WONEN IN HEESWIJK-DINTHER
Heeswijk-Dinther, onderdeel van de gemeente Bernheze, is een sfeervol dorp met ongeveer 9.000 inwoners. Op korte afstand van de woning bevindt zich het gezellige dorpscentrum met verschillende winkels en voorzieningen. Cultuurliefhebbers en natuurliefhebbers kunnen hun hart ophalen met bezienswaardigheden zoals het Kasteel Heeswijk, het sfeervolle natuurtheater de Kersouwe en de historische Kilsdonkse molen. Ook de Abdij van Berne, bekend om het ambachtelijke Berne Bier, biedt unieke evenementen zoals “Vier het leven”, waar de wisseling van de seizoenen gevierd wordt. Heeswijk-Dinther staat bekend om zijn gezellige dorpsleven. De jaarlijkse evenementen zoals de Solex Race, de Avondvierdaagse en de Zeskamp zorgen voor volop gezelligheid en verbinding. Met meer dan tien actieve sportverenigingen, een rijk verenigingsleven en de ligging in een prachtige groene omgeving is dit dorp een heerlijke plek om te wonen, voor jong en oud.
CENTRALE LIGGING EN BEREIKBAARHEID
Deze woning is ideaal gelegen in het hart van Heeswijk-Dinther, met alle voorzieningen binnen handbereik. Dankzij de nabijheid van de N279 is er een snelle verbinding naar de A2 richting Tilburg en Utrecht, en de A50 richting Eindhoven en Nijmegen. Grote steden zoals ‘s-Hertogenbosch en Eindhoven zijn eenvoudig bereikbaar, terwijl kleinere winkelcentra in plaatsen zoals Veghel, Schijndel, Uden en Oss op slechts 10 tot 20 minuten rijden liggen. Daarnaast is er een goede busverbinding naar Veghel en ’s-Hertogenbosch. De herinrichting van de doorgaande weg in HeeswijkDinther nadert bijna haar voltooiing. Dit project transformeert de doorgaande weg naar een groene dorpsstraat met meer ruimte voor wandelaars en fietsers. Hierdoor wordt het nóg prettiger wonen in Heeswijk-Dinther.
SCHOLEN EN SPORT
Heeswijk-Dinther telt meerdere kinderdagverblijven, drie basisscholen en een middelbare school; Gymnasium Bernrode. Op sportief vlak zijn zo’n tien sportverenigingen actief. Bovendien is er een zwemschool in het dorp gevestigd.
Op loopafstand bevinden zich basisschool, ’t Palet, sporthal de Zaert en de sportvelden.
Wij nodigen je van harte uit om deze sfeervolle woning met alle mogelijkheden zelf te ervaren, maak vandaag nog een vrijblijvende afspraak voor een bezichtiging.