Irenestraat 19, 5473 ED, Heeswijk-Dinther
pin
5473 ED,
Heeswijk-Dinther
€ 439.000
Kosten Koper

Korte omschrijving

Karaktervolle tweekapper op rustige locatie in het dorpscentrum Op een rustige locatie in het centrum van het dorp staat deze helft van een dubbel woonhuis uit 1980. De woning heeft een warme, karaktervolle uitstraling en ligt op loopafstand van alle

Lees meer

Kenmerken

Aangeboden sinds

13 maart 2026

Bouwjaar

1980

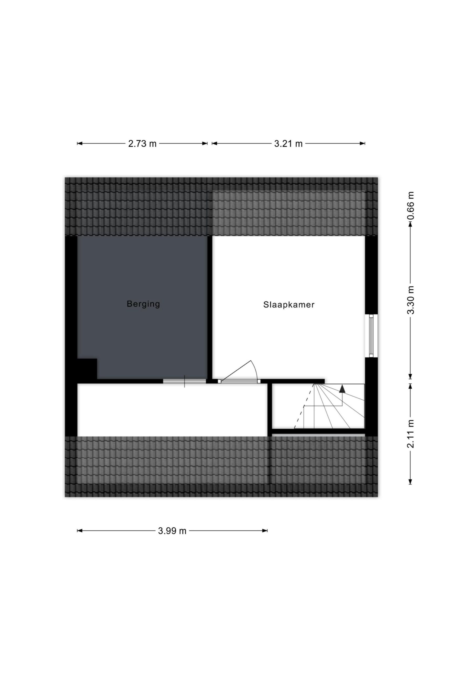
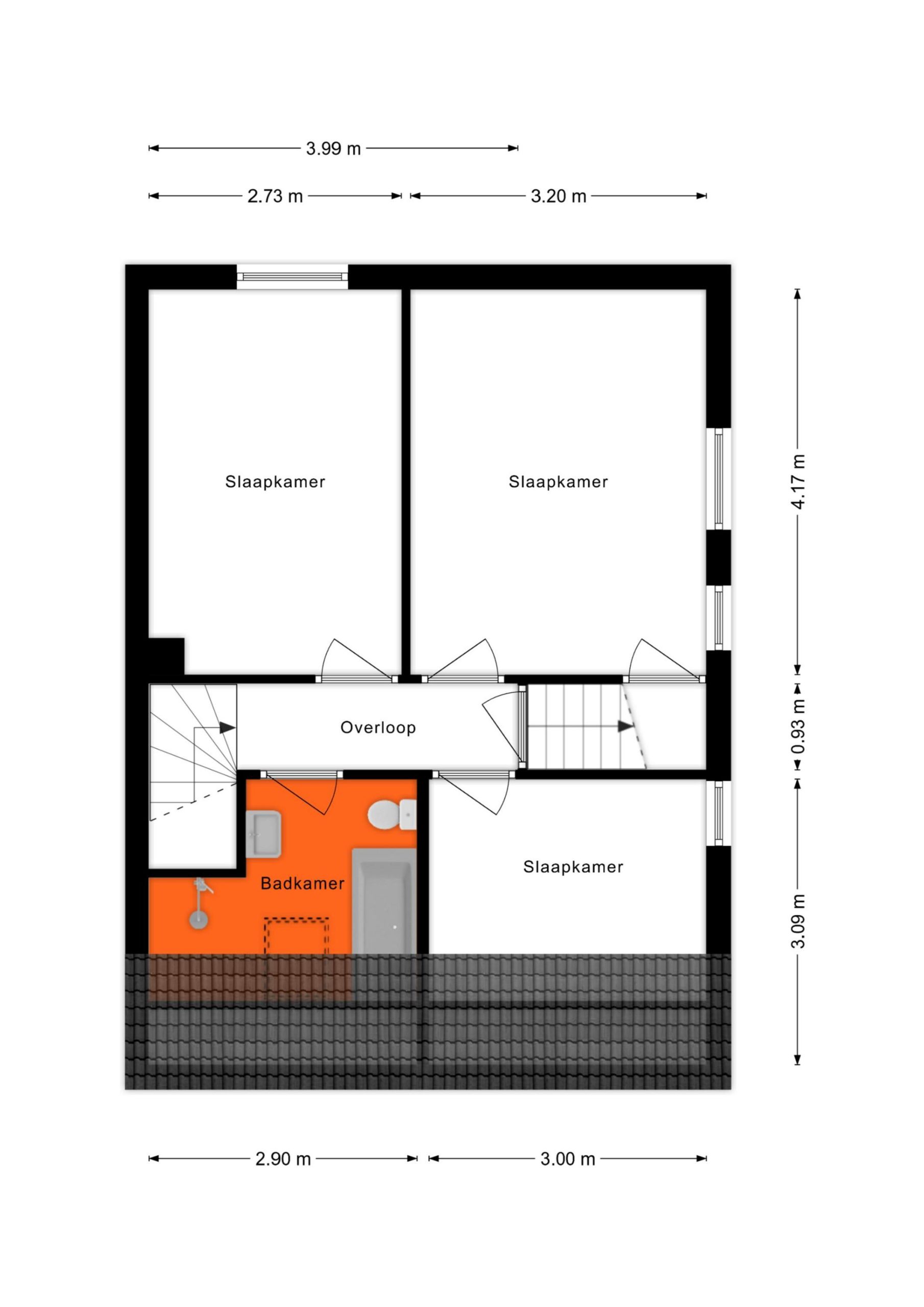
Woonoppervlakte

120 m2

Aantal kamers

7 kamers

Inhoud

463 m3

Vragen over deze woning?

Frans Langenhuijsen