





























Welkom aan De Schans, een gewilde plek in het groene Heeswijk-Dinther. Deze moderne, kindvriendelijke wijk, ook wel het ‘groene eiland’ genoemd, onderscheidt zich door een speelse mix van gekleurde gevels, de ruime opzet en de rustige ligging aan de rand van het dorp. Een unieke locatie: de woningen grenzen aan de achterzijde aan groen of water, waardoor je veel privacy ervaart. Aan de voorzijde kijk je uit op een gezellig brinkje/pleintje.
De tussenwoning op nummer 17 is volledig instapklaar en onderhoudsvriendelijk. Met energielabel A ben je verzekerd van jarenlang wooncomfort en lage energielasten. Vanuit deze fijne woonplek loop je zo het buitengebied in. Het dorpscentrum met alle dagelijkse voorzieningen, scholen en sportfaciliteiten ligt op korte afstand.
Dankzij de gunstige ligging ten opzichte van de A50 en A59 zijn steden als ’s-Hertogenbosch en Eindhoven uitstekend bereikbaar. Hier woon je met alle rust van het dorp én de voordelen van goede verbindingen. Zie jij jezelf hier al wonen?
INDELING
Begane grond
In de hal vind je de meterkast, de garderobe en het toilet met fonteintje. De CV-combiketel is achter een wand in de toiletruimte opgesteld en hier vind je ook de mechanische ventilatie-unit. Vanuit de hal loop je de gezellige woonkamer binnen. De brede raampartij over de gehele achtergevel valt hier direct in het oog en biedt een mooie blik op de goed verzorgde achtertuin. Omdat de woning grenst aan een groenstrook geniet je hier van een natuurlijke achtergrond met volwassen bomen.
De trapopgang bevindt zich in de woonkamer en is netjes weggewerkt. Tevens heb je hier het gemak van een trapkast voor extra bergruimte. Aan de voorzijde van de woning ligt de open keuken, die is uitgevoerd in een moderne donkere kleurstelling met een granieten werkblad. Tegenover het keukenblok staat een kastenwand met combi oven/magnetron en koelkast.
De keuken is uitgerust met de volgende inbouwapparatuur :
• 4-pits gaskookplaat Bosch
• afzuigkap Itho
• combi-oven/magnetron Bauknecht
• koelkast Bosch
• vaatwasser Bosch
• spoelbak
Het raam in de keuken zorgt voor veel daglicht en geeft een mooi zicht op het pleintje.
Op de vloer ligt een lichtgekleurde laminaatvloer in eikendesign. De wanden zijn afgewerkt met fijne spachtelputz.
EERSTE VERDIEPING
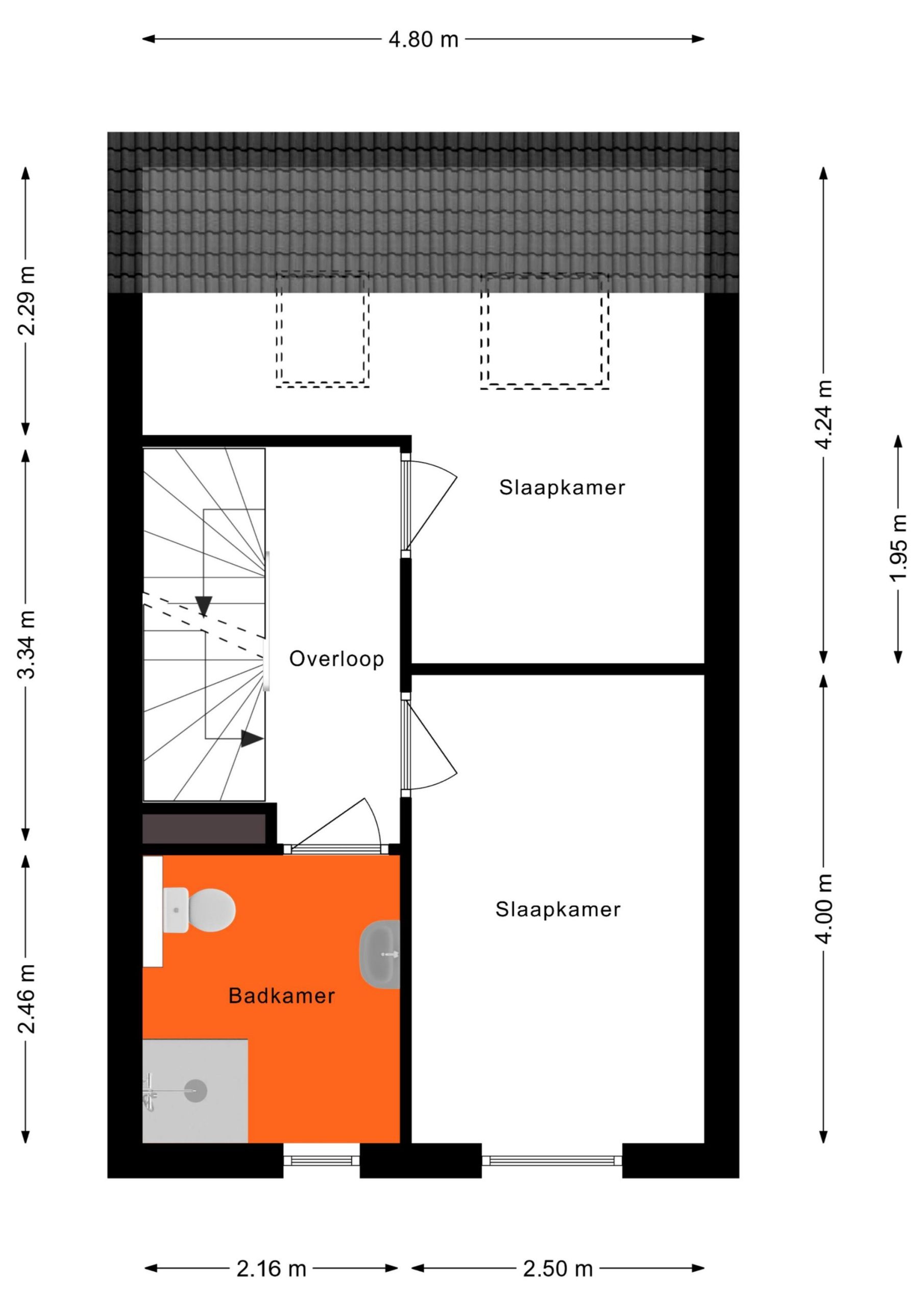
Via de trapopgang in de woonkamer bereik je de eerste verdieping. Op deze verdieping bevinden zich aan de overloop twee slaapkamers en een moderne badkamer. De ouderslaapkamer ligt aan de achterzijde van de woning. De twee dakramen zorgen voor lichtinval, beschikken over een hor en zijn voorzien van verduisterende gordijnen. De dressoirkast is op maat gemaakt en biedt volop bergruimte. Praktisch is de werkplek die in deze slaapkamer is gecreëerd. Op de vloer ligt vloerbedekking die doorloopt naar de overloop. De wanden zijn voorzien van spachtelputz. De tweede slaapkamer ligt aan de voorzijde van de woning. Hier ligt een lichte laminaatvloer. De moderne badkamer biedt ruimte aan een royale inloopdouche, wastafel met spiegelkast, toilet en designradiator, tijdloos uitgevoerd met een zwarte vloer- en witte wandtegel. De badkamer wordt via het raam en via een ventilatiekanaal geventileerd.
TWEEDE VERDIEPING
De vaste trap op de overloop brengt je naar de tweede verdieping. Hier bevinden zich de witgoedaansluitingen. Er is voldoende daglicht dankzij het dakraam. Een ruimte met veel potentie want hier creëer je een extra slaapkamer, een thuiswerkplek of misschien wel een walk in closet. Je kunt hier alle kanten op, zeker als je overweegt een dakkapel te plaatsen.
Op deze verdieping liggen tapijttegels, de wanden zijn gestuukt en het plafond is afgewerkt met isolatieplaten.
TUIN EN SCHUUR
De geheel omsloten achtertuin heeft een eigen achterom. De tuin ligt op het noordoosten en is grotendeels bestraat. De stenen schuur achter op het perceel is een waardevolle toevoeging. Met een royale afmeting van 11m2 kun je hier je fietsen, een extra koelkast, containers en (tuin)gereedschap gemakkelijk kwijt. Via de schuur loop je naar de brandgang. Gezellig is de buitenhaard die in de gevel van de schuur is verwerkt. Een mooie eyecatcher die ook prima dienst doet als barbecue. Dankzij de ligging aan de rand van het dorp ervaar je hier veel privacy.
HIGHLIGHTS
• Unieke en rustige ligging op het ‘Groene Eiland’ aan de rand van het dorp
• Goede aansluiting op de uitvalswegen, alle dagelijkse voorzieningen op korte afstand
• Fijne, onderhoudsvriendelijke tussenwoning
• Instapklaar
• 2 slaapkamers en badkamer op eerste verdieping
• Vaste trap naar de tweede verdieping met 3e slaap-, werk- of hobbykamer
• Fijne tuin met veel privacy en met stenen schuur
• Eigen achterom
• Volledig geïsoleerd, energielabel A
WONEN IN HEESWIJK-DINTHER
Heeswijk-Dinther, onderdeel van de gemeente Bernheze, is een sfeervol dorp met ongeveer 9.000 inwoners. Op korte afstand van de woning bevindt zich het gezellige dorpscentrum met verschillende winkels en voorzieningen.
Cultuurliefhebbers en natuurliefhebbers kunnen hun hart ophalen met bezienswaardigheden zoals het Kasteel Heeswijk, het sfeervolle natuurtheater de Kersouwe en de historische Kilsdonkse molen. Ook de Abdij van Berne, bekend om het ambachtelijke Berne Bier, biedt unieke evenementen zoals “Vier het leven”, waar de wisseling van de seizoenen gevierd wordt.
Heeswijk-Dinther staat bekend om zijn gezellige dorpsleven. De jaarlijkse evenementen zoals de Solex Race, de Avondvierdaagse en de Zeskamp zorgen voor volop gezelligheid en verbinding. Met meer dan tien actieve sportverenigingen, een rijk verenigingsleven en de ligging in een prachtige groene omgeving is dit dorp een heerlijke plek om te wonen, voor jong en oud.
CENTRALE LIGGING EN BEREIKBAARHEID
Deze woning ligt in het centrum van Heeswijk-Dinther, met alle voorzieningen binnen handbereik. Dankzij de nabijheid van de N279 is er een snelle verbinding naar de A2 richting Tilburg en Utrecht, en de A50 richting Eindhoven en Nijmegen. Grote steden zoals ‘s-Hertogenbosch en Eindhoven zijn eenvoudig bereikbaar, terwijl kleinere winkelcentra in plaatsen zoals Veghel, Schijndel, Uden en Oss op slechts 10 tot 20 minuten rijden liggen. Daarnaast is er een goede busverbinding naar Veghel en ’s-Hertogenbosch. De herinrichting van de doorgaande weg in Heeswijk-Dinther is onlangs voltooid. Dit project heeft de doorgaande weg naar een groene dorpsstraat met meer ruimte voor wandelaars en fietsers omgevormd. Hierdoor is het nóg prettiger wonen in Heeswijk-Dinther.
SCHOLEN EN SPORT
Heeswijk-Dinther telt meerdere kinderdagverblijven, drie basisscholen en een middelbare school; Gymnasium Bernrode. Op sportief vlak zijn zo’n tien sportverenigingen actief. Bovendien is er een zwemschool in het dorp gevestigd.
Laat je verrassen door de locatie, de rust en het comfort van deze woning. Plan snel een bezichtiging en ervaar het zelf!